― D R E A M ―
松原434 E棟
新築分譲住宅 全5棟
おかげ様で御成約いたしました。
【Information】
京王線、小田急線、井の頭線、世田谷線と4線利用可能なので渋谷、新宿、吉祥寺、はもちろん、そのまま地下鉄で乗り入れて都心へもスムーズにアクセスできるとても便利なロケーションです。近くの駅にはそれぞれの商店街があり、その中でも下高井戸商店街は日曜や祝日に公園通りや駅前通りが歩行者天国となり家族連れや買い物客で大変賑わいます。街の象徴ともいえる現在の下高井戸駅前市場は、昭和31年に建設され、現在に至っています。また、近くには羽根木公園があり梅の名所として名高く、60種類以上・約700本の梅が咲く時期には「せたがや梅まつり」が開催され、地域や遠方からも大勢の人たちが集まり憩いの場として親しまれています。
アクセス
京王線「下高井戸」駅徒歩7分 世田谷線「松原」駅徒歩7分
小田急線「豪徳寺」駅徒歩14分 井の頭線「東松原」駅徒歩14分
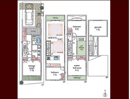
【E棟 間取図】
■土地面積:78.00㎡(23.59坪)
■建物面積:124.18㎡(37.56坪)(7.19㎡車庫含む)
□1F面積/44.52㎡ □2F面積/45.17㎡ □3F面積/34.49㎡

【物件概要】
所在地:東京都世田谷区松原4丁目 E棟
土地権利:所有権
地目:宅地
用途地域:第一種低層住居専用地域
防火地域:準防火地域
高度地区:第一種高度地区
建ぺい率:60% 容積率:150%
接道:北側約5.4m公道
構造:木造(在来枠組工法)
規模:地上3階建
総棟数:全5棟(紹介物件E棟)
完成2016年(平成28年)6月完成
引渡:相談
設備:東京電力・都市ガス・公営水道・本下水
その他:住宅保証機構㈱「住宅瑕疵担保責任保険」付・「検査済証」取得済
【建物内装写真】
・リビング

・キッチン


・居室

・玄関

・シューズボックス

・浴室

【標準設備・仕様】
□木造準耐火構造 □木造(在来軸組工法)
□内装仕上げには低ホルム材を使用
□第三者機関による地盤調査済
□銘木フローリング材を使用 □LDKに床暖房を完備
□ウォシュレットトイレ2ヶ所設置
□給湯器は自動追炊き保温機能付 □浴室乾燥機付
□サッシは全てLow-Eガラスを使用
□食器洗い乾燥機付システムキッチン
□キッチン水栓はシャワー&浄水器一体型 □カラーモニター付インターホン
□宅配BOX完備
□省エネ等級4仕様[フラット35S対応]・トップランナー基準[金利プランA]
■□■□■□ お客様の笑顔を大切に考えて取組みます。 □■□■□■
株式会社VECS (ヴェックス)
Tel : 0120-002-237
Tel : 03-6417-9615
メール: info@vecs-inc.com
URL : http://www.vecs-inc.com/
所在地:東京都品川区西五反田1丁目28-8エクセル五反田ビル1階
※品川区・目黒区を中心とし都内の戸建・土地・中古マンション
など、皆様のオンリーワンをお探しします。
■□■□■□■□■□■□■□■□■□■□■□■□■□■□■□■












