―大森東2丁目―
新築分譲住宅
おかげ様で御成約いたしました。
万円
京急本線「大森町」駅徒歩8分の立地に登場するのは、東側道路に面する
2階建住宅の完成新築分譲住宅です。
【物件概要】
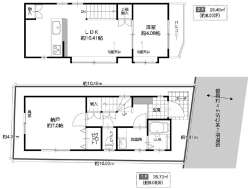
所在地:東京都大田区大森東2丁目(完成済)
土地面積:44.56㎡(約13.48坪)(実測)
延床面積:53.19㎡(約16.09坪)
地目:宅地
土地権利:所有権
地勢:平坦
都市計画:市街化区域
用途地域:準工業地域
防火地域:準防火地域
高度地区:第2種高度地区
建ぺい率:60% 容積率:200%
設備:公営水道・本下水・都市ガス
接道状況:東側約4.0m法42条2項道路
SB面積:2.92㎡(分筆済)
その他法令に基づく制限:特別工業地域
建物完成:2016年(平成28年)10月完成
その他:住宅保証機構㈱の住宅瑕疵担保責任保険
【間取図】

【建物写真】
・リビング

・キッチン

・浴室

・玄関

【標準仕様】
◎大建工業製フローリング「MYフロア」…特殊加工により耐傷性に優れ、
ワックス不要でお手入れも簡単です。 床は2重張り・バリアフリー仕様です。
◎YKKAP製防火サッシ「防火窓G」…高断熱型LOW-E複層ガラスです。
引違い窓に上部シャッター付(高窓除く)、網戸は全部の窓に標準装備
◎TOTO製洗面化粧台「サクア」…たっぷり収納・ワイドボウル・エコシングル水栓・ポケット収納
◎LIXIL製シャワートイレ「ベーシア」…リフトアップ機能付で奥までお掃除、オート洗浄、壁リモコン、
◎KMEW製サイディング…メイン板「エクセレージ14親水セラ」、アクセント板「エクセレージ15親水セラピクセラ」
◎タカラ製システムキッチン「オフェリア」…ビルトイン浄水器、食器洗い乾燥機、人大トップ天板等、充実の設備です。
◎LIXIL製ユニットバス「アライズ」…お掃除簡単なキレイサーモフロア、渦の力でゴミをまとめるくるりんポイ、地デジ対応12型ワイドテレビ付
◎ベタ基礎・基礎パッキン・ホールダウン金物使用
◎リビングインターホンはカラーモニター付
◎階段手摺、暗くなったら足下を照らすコンセント付、足元灯2ヶ所設置
◎開放感あふれるオープン外構、外部水道1ヶ所
■□■□■□ お客様の笑顔を大切に考えて取組みます。 □■□■□■
株式会社VECS (ヴェックス)
Tel : 0120-002-237
Tel : 03-6417-9615
メール: info@vecs-inc.com
URL : http://www.vecs-inc.com/
所在地:東京都品川区西五反田1丁目28-8エクセル五反田ビル1階
※品川区・目黒区を中心とし都内の戸建・土地・中古マンション
など、皆様のオンリーワンをお探しします。
■□■□■□■□■□■□■□■□■□■□■□■□■□■□■□■












